Paradise Developments | Whitby Meadows & Park Vista | North Detached | Concord

COMING SOON

FREEHOLD TOWNHOMES, SEMIS & DETACHED HOMES

 

40' Detached Homes

The CONCORD

3,205/3,225 SQ. FT.

Ground Floor +
The CONCORD Ground Floor
Second Floor +
The CONCORD Second Floor
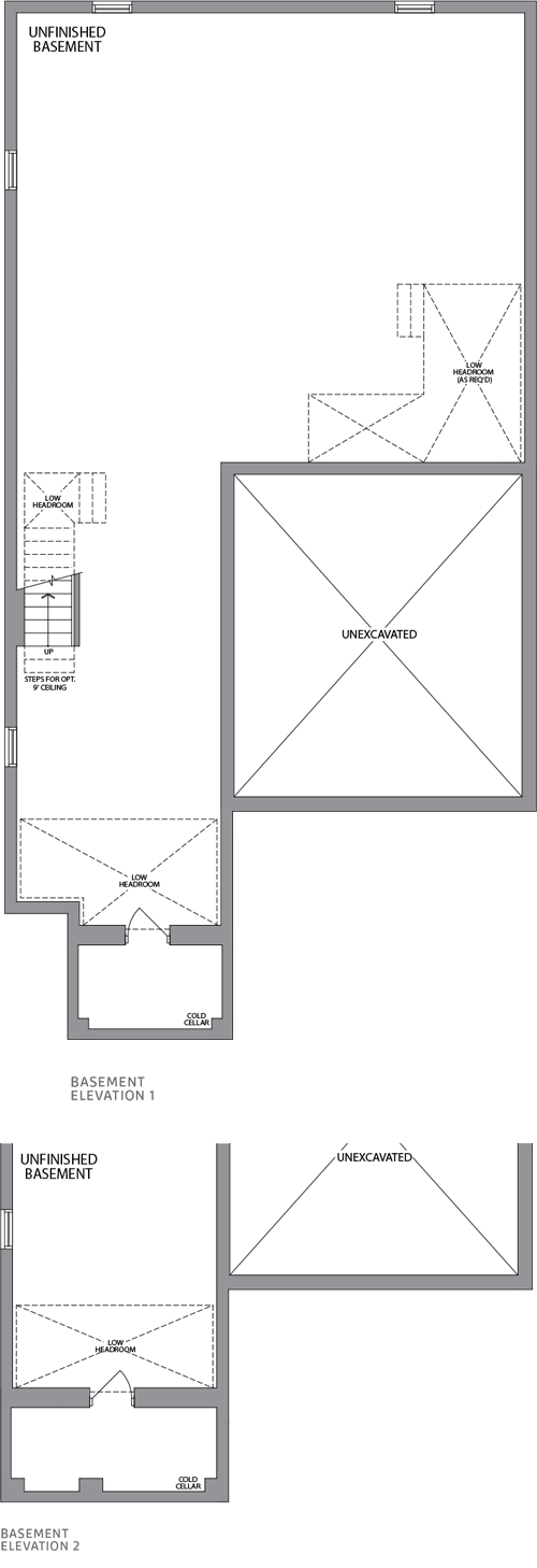
Basement +
The CONCORD Basement

Pricing, plans and specifications are subject to change without notice. E. & 0. E. Actual usable floor space may vary from the stated floor area. All renderings are artist's concept.


Explore our Floorplan Brochure:


GET PRE-APPROVED for your mortgage by our PARADISE DEVELOPMENT'S RBC Specialist:

Robert Kavanagh

Email: Robert.kavanagh@rbc.com

Tel: (416) 414-6815


PLEASE REMEMBER

One (1) of the following pieces of Photo Identification:

  • Canadian Passport
  • Canadian Permanent Residency Card
  • Canadian Birth Certificate
  • Indian Status Card

*Please note, a Driver’s License is not a valid piece of Photo Identification