Paradise Developments | Milton View | Detached | Gwenyth

NOW SELLING

TOWNS & DETACHED HOMES IN MILTON

 

36' Double Car Garage Detached Homes

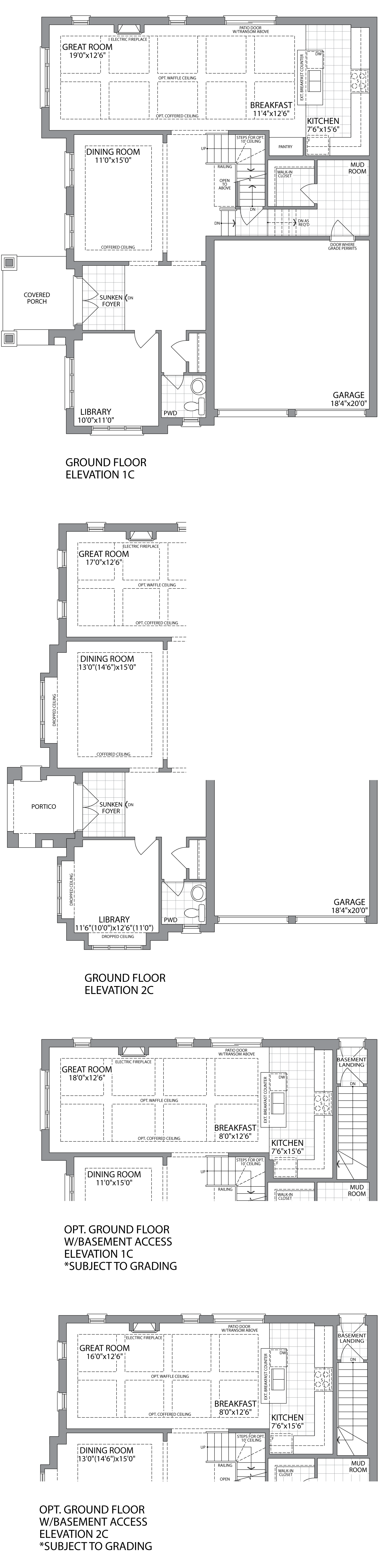
The Gwenyth

3,170/3,200 SQ. FT.

GROUND FLOOR +
The Gwenyth Ground Floor
SECOND FLOOR +
The Gwenyth Second Floor
BASEMENT +
The Gwenyth Basement

Pricing, plans and specifications are subject to change without notice. E. & 0. E. Actual usable floor space may vary from the stated floor area. All renderings are artist's concept.


Explore our Floorplan Brochure:


GET PRE-APPROVED for your mortgage by our PARADISE DEVELOPMENT'S RBC Specialist:

Tara Sher

Email: tara.sher@rbc.com

Tel: (437) 424-5482

Robert Kavanagh

Email: robert.kavanagh@rbc.com

Tel: (416) 414-6815

Gurjit Channa

Email: Gurjit.channa@rbc.com

Tel: (416) 258-7985


PLEASE REMEMBER

Two (2) of the following pieces of Photo Identification:

  • Canadian Passport
  • Canadian Permanent Residency Card
  • Canadian Birth Certificate
  • Indian Status Card

*Please note, a Driver’s License is not a valid piece of Photo Identification

OUR SALES REPRESENTATIVES

Deborah Beament

Julie Corby

Stephanie Kocialek

Micheline Nicola

Cara Ramani